Helenoverat 1920-talshus på Kausalkullvägen 35 Vörå

Visning söndag 29.3 kl 15:00 - 16:00
På en grönskande kulle på Kausalkullvägen 35 ligger detta vackra hem med sekelskifteskaraktär, byggt 1927 och helrenoverat 2002. Huset kombinerar gammal stil med en hemtrevlig känsla, moderna bekvämligheter och erbjuder en trivsam miljö för familjen som vill bo naturnära men ändå ha allt det praktiska inom räckhåll.
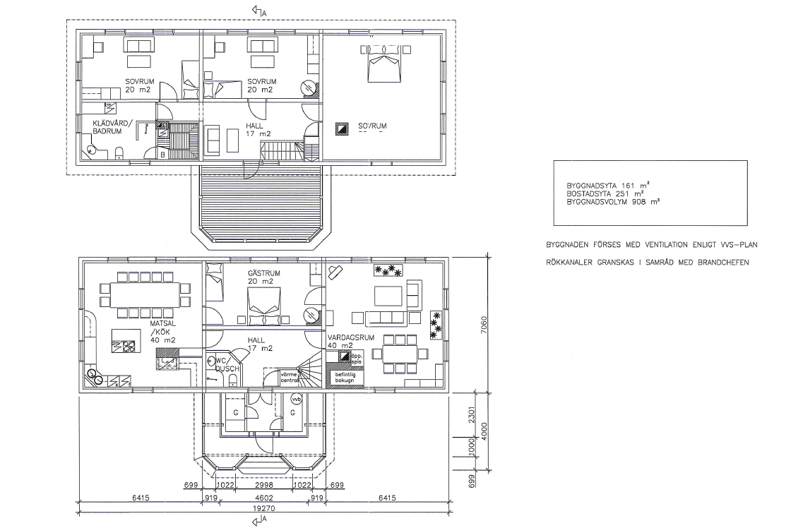
Planlösningen erbjuder fem rum och ett stort kök och bostadsytan uppgår till totalt 251 m². På nedre våningen finns stugkök, två stora rum och gästtoalett och på övre våningen finns tre rymliga rum och badrum med bastu. Farstukvisten med terrass ovanpå är utbyggd 2002. Vid renoveringen har allt som kunnat återanvänds från originalinredningen bevarats, inklusive dörrar, lister och golv, vilket ger hemmet en tidlös genuin charm.
Uppvärmningen sker via bergvärme med en förnyad värmepump från 2022. Som komplement finns flera eldstäder, det finns två Högfors vedhällor, två "kakelugnar" och en öppen spis, dessa bidrar även med mysig atmosfär. Elförbrukningen ligger normalt mellan 15 000 och 20 000 kWh per år, men blir lägre om man använder vedeldning ofta. Huset är byggt i stock men har tilläggsisolerats och har fått ett nytt plåttak från 2001.
Gården är lummig och insynsskyddad, fylld med färgrika växter och grönskande träd. På tomten finns stora uthus med många utrymmen (ca 350 m²) och en vedeldad utebastu med terrass. På gårdsplan finns även en egen brunn för trädgårds och bastuvatten.
Fastigheten omfattar 6 908 m² tomtmark med vatten och el, eget infiltrationssystem för avlopp och möjlighet till fiber finns. Fastighetsskatten uppgår till 304 €. Ej lagstadgat energicertifikat.
Det här hemmet är en blandning av historia och en lugn privat miljö. Här kan du njuta av naturens ro och samtidigt ha goda möjligheter till ett trivsamt boende för många år framöver.
Fastighet: 946-409-1-64
260 000 €














































